
SPARKASSENZENTRALE LINZ
ADAPTIERUNG UND SANIERUNG SPARKASSENZENTRALE LINZ, Um- und Zubau
Geladener Architekturwettbewerb - 1. Preis
Gerald Anton Steiner Architekten | destilat design studio | Skop Bauconsulting
Planung: 2023-2024
Realisierung: 2024-2026
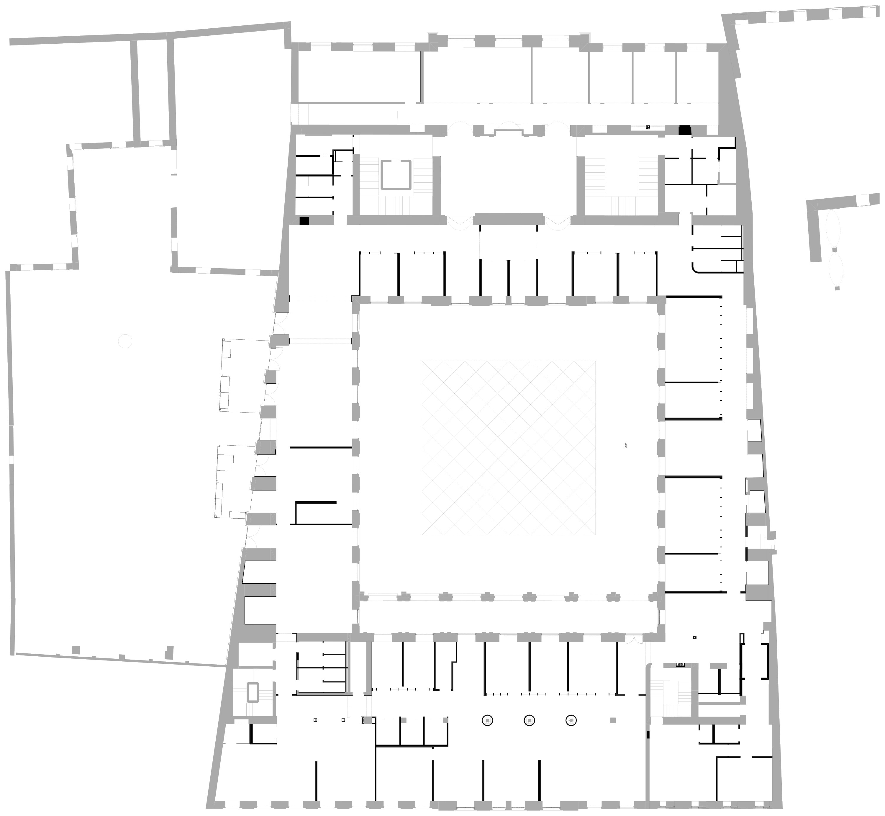
MODERNISIERUNG DES STAMMHAUSES DER SPARKASSE OÖ AN DER PROMENADE.
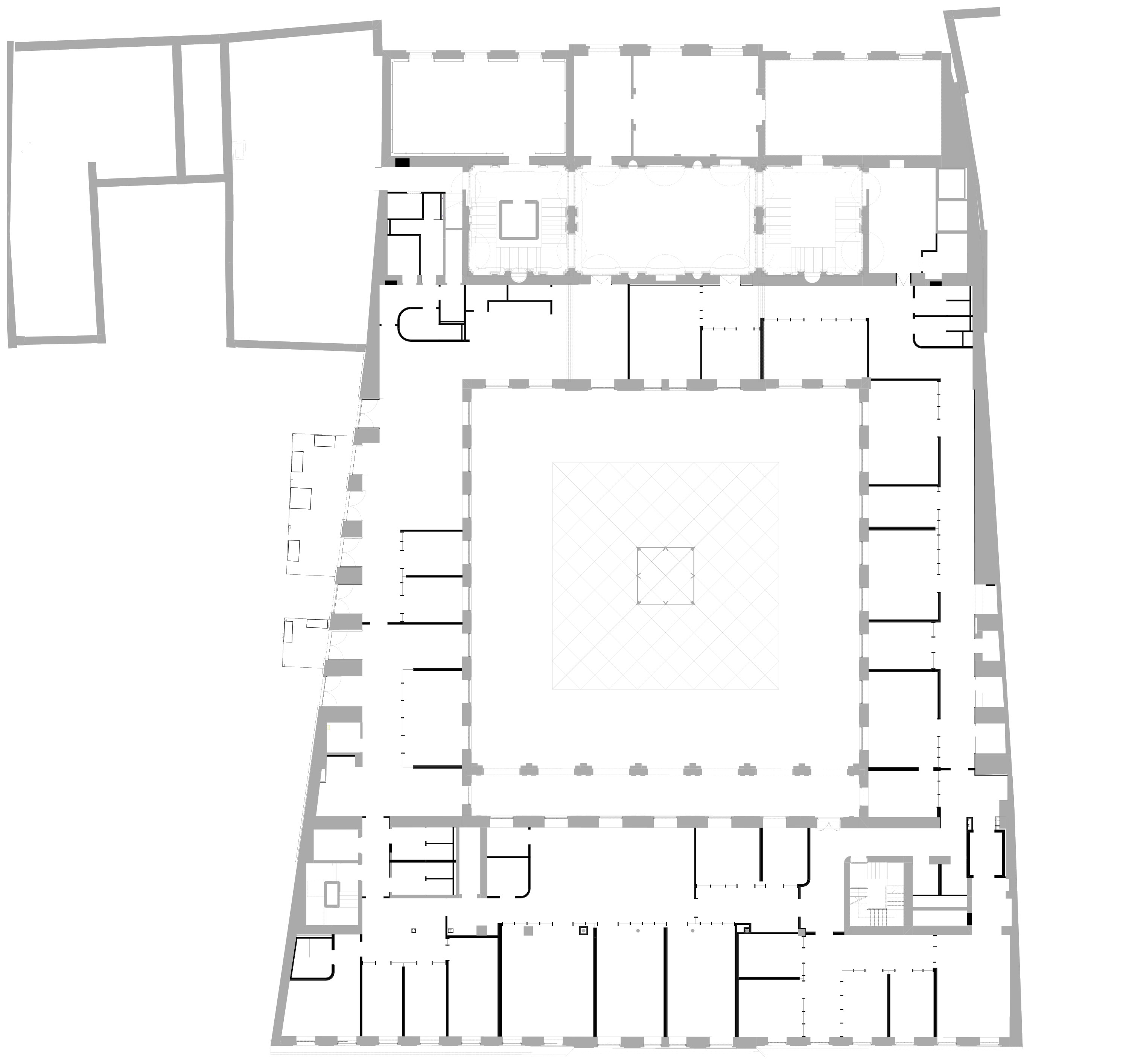
Zwei Jahre werden die Umbauarbeiten in dem denkmalgeschützten und mitten im Linzer Zentrum gelegenen Gebäude in Anspruch nehmen. Ein komplexes Bauvorhaben, das in Sachen Nachhaltigkeit oberösterreichweit einzigartig ist. Es entsteht ein zeitgenössisches Bankgebäude als Zeugnis seiner Zeit, programmatisch vielfältig, mit differenzierten räumlichen Angeboten und Annehmlichkeiten sowohl für Kund:innen als auch für Mitarbeiter:innen, umgesetzt im historischen Kontext des bestehenden Gebäudes. Der Umbau ist aber auch ein haustechnisches Update auf aktuelle Bedürfnisse - der Einbau von intelligenten Energiemanagementsystemen, Energieeinsparung durch neue technische Anlagen, die Erweiterung der Photovoltaik-Anlage sind einige Beispiele hierfür. Die thermische Aufwertung der Außenhülle und eine Neustrukturierung aller Abteilungen und Bereiche bei gleichzeitiger Einhaltung des Denkmalschutzes, sowie die konsequente Berücksichtigung von Aspekten der Kreislaufwirtschaft sind Schwerpunkte dieser Generalsanierung.
OFFENHEIT UND TRANSPARENZ. Der monumentale Repräsentationsbau nach Plänen des Architekten Ignaz Scheck gehört der Periode des strengen Historismus an. An ihm finden Stilelemente der italienischen Palastarchitektur der Spätrenaissance Verwendung. Der Neubau der Sparkassen-Zentrale auf der Promenade zählt als sein Hauptwerk. Die Planung zielt darauf ab, ein neues Erleben in einem mehr als 100 Jahre alten Gebäude zu schaffen. Der Fokus liegt in der atmosphärischen Programmierung der Bestandssubstanz, deren Anspruch ist, wohnlich, produktiv und kommunikativ zugleich zu sein, andererseits auch Rückzugsmöglichkeiten zu bieten. Das Gebäude wird künftig Offenheit, Transparenz und ein luftiges Ambiente mit den Bedürfnissen an Rückzug, Ruhe und Konzentration miteinander verknüpfen. Ein besonderer Fokus liegt auf der Integration von unterschiedlicher Bepflanzung über alle Geschoße bis hin zum neu hinzugefügtem Freiraumgerüst auf der Westseite, dem sogenannten „Öko-Regal“, das Balkone und bepflanzte Bereiche als Raumerweiterung für alle Geschosse bereitstellt. Ein weiteres Highlight bildet der von der Stadt Linz rücküberlassene Brunnen vom Taubenmarkt, der künftig als besonderer Blickfang den westseitigen Hof bereichern wird.
SPARKASSE ÖFFNET SICH STÄRKER ZUR STADT. Das Sparkasse OÖ-Gebäude an der Promenade öffnet sich im Erdgeschoß zur umgebenden Stadt. Ins Erdgeschoß betten sich neben der neu gestalteten Kassenhalle und der Filiale öffentlichkeitswirksame Funktionen ein – die neue SB-Zone mit Ausgabeterminals für den Safe, ein co-working space, das S.Café, den Aufenthalts- und Veranstaltungsbereich unter der Glaspyramide, einen digitalen Raum – das S.Kino, Angebote der Finanzbildung, das Monetarium, und viele mehr welche die Bank zu einem modernen Hub für alle bestehenden, sowie zukünftigen Kunden entwickeln soll. Durch die Anordnung der Infopoints als Anlaufstellen und der Besprechungsräume in der Halle wird diese zoniert und die einzelnen Bereiche atmosphärisch schlüssig erlebbar.
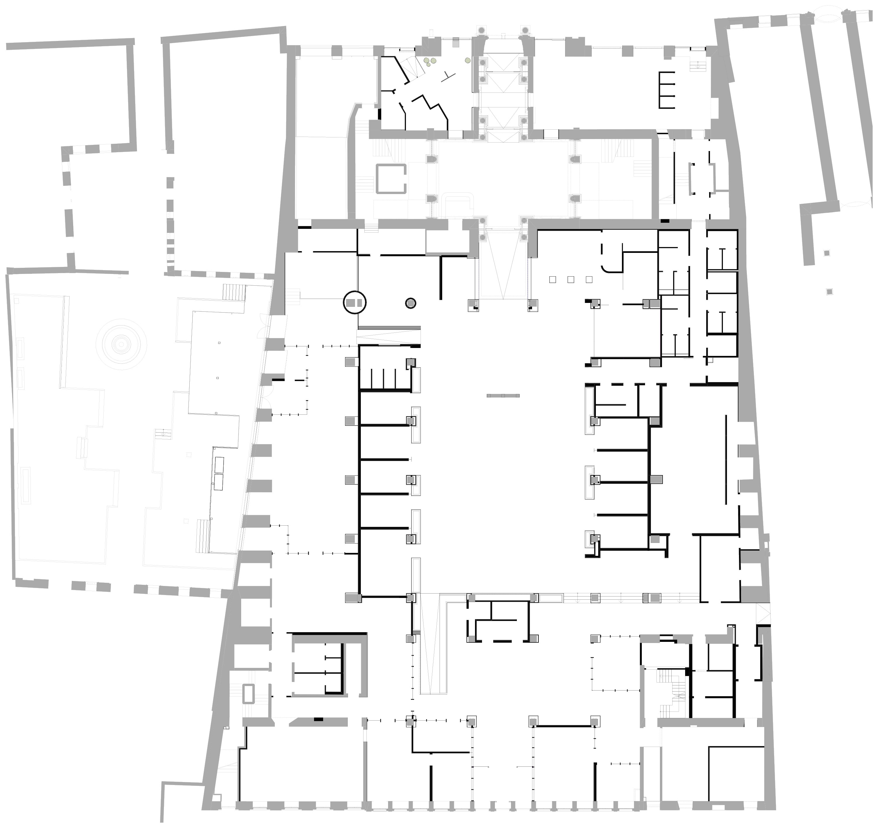
MODERNES ARBEITEN: ACTIVITY BASED WORKING.
Die Arbeitswelten im Gebäude werden vollständig neu gedacht. Klassische, fixe Arbeitsplätze verlieren an Bedeutung und machen Platz für vielfältige Zonen, die unterschiedliche Tätigkeiten bestmöglich unterstützen. So entstehen moderne Teamräume, inspirierende Think Tanks, konzentrierte Fokusarbeitsplätze sowie eigene Bereiche für Telefon- und Videokonferenzen. Ergänzt wird das Angebot durch offene und geschlossene Meetingräume, die flexible Formen der Zusammenarbeit ermöglichen. Die Flächen, die durch den Wegfall territorialer Arbeitsplätze frei werden, fließen direkt in eine höhere Aufenthalts- und Arbeitsqualität für die Mitarbeiter:innen. Zusätzlich entsteht ein vielfältiges Angebot an neuen Aufenthalts- und Erholungsbereichen, darunter ein moderner Fitnessraum, ein eigener Gamingbereich sowie ein Yogaraum, die das Wohlbefinden am Arbeitsplatz weiter stärken.





