
SCHÄRDING
Schärding, Wettbewerb 2022
ENTWURF
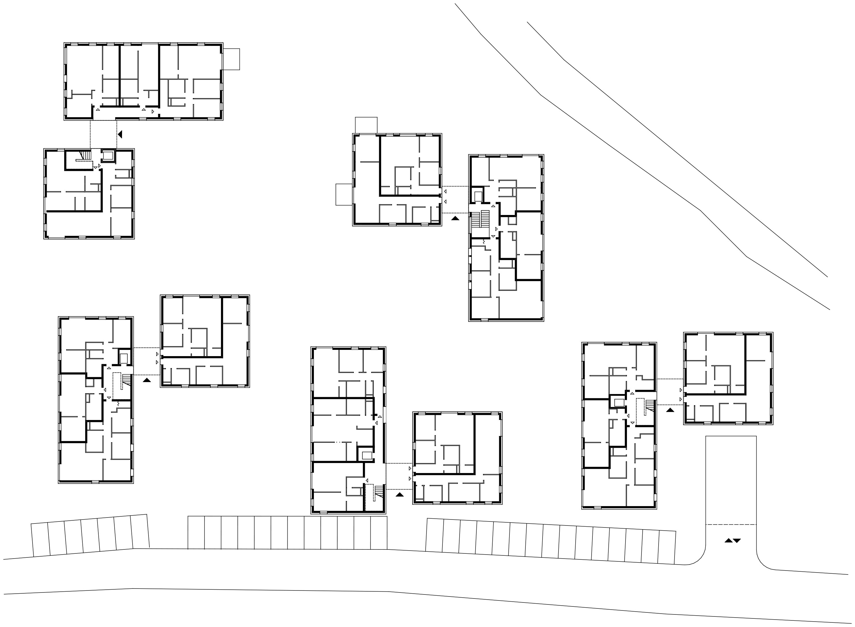
Im unmittelbaren Übergang zwischen dem Naturraum am Inn und der städtischen Struktur sind fünf je zweigegliederte, zwei- bis fünfgeschoßige Baukörper geplant, die zwischen gewinkelter und Punktbebauung changieren, und so kompakte Baustrukturen geöffneten Platzln gegenüberstellen.
Die Baukörper vermitteln Kompaktheit und Kleinteiligkeit und nehmen die Körnung der umliegenden Bebauung auf. In ihrer Anordnung fügen sie sich organisch in die Umgebung, öffnen sich zu unterschiedlich bespielten Platzln und stellen eine durchlässige, kommunikative Situation zueinander wie auch zur Nachbarschaft her.
Das Entwurfskonzept sieht eine kleinteilige Vielfältigkeit bei qualitativ hochwertiger Dichte vor. Ausgehend von einer herkömmlichen, blockartigen Struktur wurde die Dichte zum Leitmotiv in der Aufteilung und Rekombination der Massen und Flächen.
Diese gleichermaßen kleinteilige wie auch kompakte Bebauung nimmt in dieser Art die Qualitäten der historischen kompakten Bezirksstadt Schärding auf und interpretiert diese neu.
Ein System räumlich differenzierter Platzln überträgt die städtebaulichen Qualitäten der Altstadt in eine zeitgemäße Wohnbauform, die ihrerseits auch in der Gestaltung der Fassaden ihren Niederschlag finden: dezente und variierende Farbigkeit sind identitätsstiftend und referenzieren auf die Farbigkeit der Stadtfassaden, weiße Faschen um ausgewählte Fenster setzen Akzente.
BAUKÖRPERPAARE
Die Offenheit setzt sich in den Baukörpern selbst fort. Sie bilden fünf Baukörperpaare und sind in sich jeweils mit geschlossenen Gängen in den Obergeschoßen verbunden. im Erdgeschoß bleiben diese offen. Zueinander verhalten sich die Baukörperpaare über Durchgänge und die Platzln differenziert wie auch durch die Höhenstaffelungen. Durch diese werden sowohl die Blickbeziehungen zum Inn, wie auch der Übergangscharakter in die Auenlandschaft betont. Bei wiederkehrenden Grundrissen schafft die Höhenentwicklung Vielfalt und Unterschiedlichkeit.
Die Durchwegung verwebt sich mit den differenzierten Raumqualitäten der Platzln - als Übergangsbereich zwischen verschiedenen Wegeverbindungen bieten auch die Platzln in ihrer unterschiedlichen Bespielung Vielfalt für Erholung und Aktivität. Verbunden sind auch die kleinteilig gehaltenen Baukörper, die Baukörperpaare selbst werden in ihren Verbindungsbereichen erschlossen werden.
Insgesamt beherbergen die Baukörperpaare 95 Wohnungen, großteils förderbar.
Ein entscheidendes Augenmerk liegt auf gleichmäßig qualitativ hochwertigen Wohnungsgrundrissen und Ausrichtungen, wobei keine Unterscheidung zwischen den Fassaden gemacht wird und der Umgebung keine Rückseite zugewandt wird.
Vorgehängte Balkone, jeweils zur Hälfte mit seitlichem Sichtschutz und Loggiencharakter ergänzen die durch die unterschiedlichen Fensterformate und Faschen belebten Fassaden. Die Freiflächen sind jeweils direkt zum Inn oder nach Süden orientiert; in jedem Fall bleiben die Auenlandschaft und die Nähe zum Fluss spürbar.
Der motorisierte Individualverkehr wird in der nordseitig erschlossenen Tiefgarage untergebracht, wo sich auch die Fahrradräume befinden - und von dort direkt an den überregionalen Radweg R3 zwischen Schärding und Passau angebunden sind. Ostseitig an der Erschließungsstraße sind Freiparkplätze situiert.
Sämtliche Bauwerke sind über dem hundertjährigen Hochwasserniveau gelegen und sorgen für eine sorgenfreie, gleichwohl unmittelbare Nähe zum Wasser.















