
NAHVERSORGER UND AMTSGEBÄUDE KLEINZELL IM MÜHLKREIS
1. PREIS Wettbewerb 2020
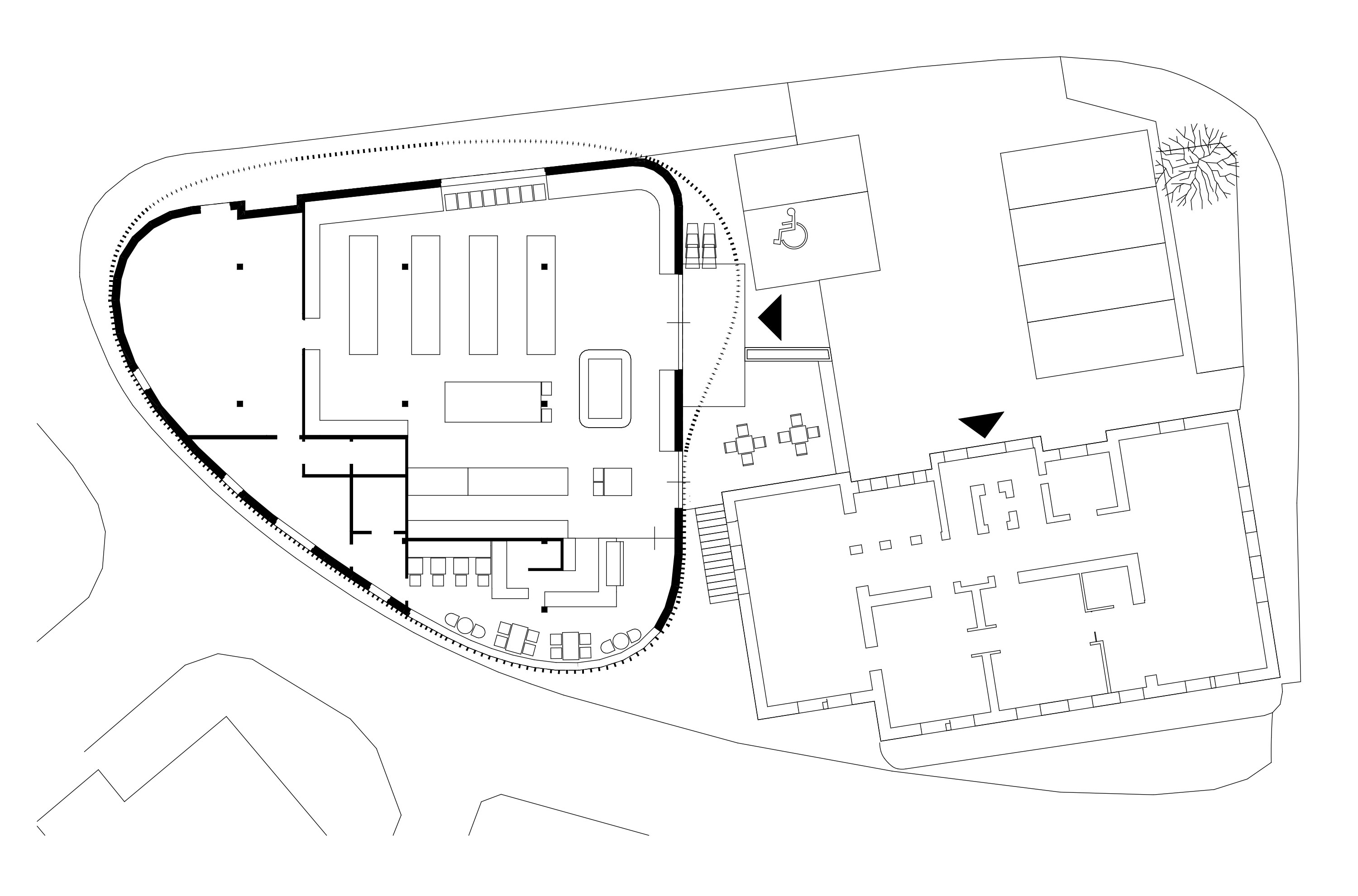
Der neue Nahversorger markiert als organisch geformter eingeschossiger Baukörper die Ortseinfahrt von Kleinzell im Mühlkreis. Der Vorschlag für die Namensgebung - „s´Loabal“ bezieht sich sowohl auf die Form, als auch auf die in das Marktkonzept integrierte Bäckerei. Der Markt sitzt als Solitär ohne Verbindung neben dem bestehenden historischen Amtsgebäude und spannt mit diesem den Platz auf, der zu den Eingangsbereichen führt. Die Wegverbindung über die Stiege in Richtung Süden bleibt bestehen und trennt das Amtsgebäude vom Markt.
Mit der gewählten Formensprache nutzt der Baukörper das Grundstück ideal aus, wodurch der Nahversorger inklusive seiner Nebenflächen auf einer Ebene, aufgesetzt auf dem bestehenden Sockel Platz findet. Die Auskragung ermöglicht gedeckte Parkplätze im Untergeschoß.
NAHVERSORGER
Über einen gedeckten Vorbereich mit Abstellraum für Einkaufswägen gelangt man vom Vorplatz in den Markt. Nach Betreten des Gebäudes gelangt man in den Verkaufsbereich mit einem eigenen, abtrennbaren Bereich für die Bäckerei im Süden. Die Anlieferung der Waren ist in Abhängigkeit von der Produktgruppe vom Platz sowie vom Lieferanteneingang im Norden des Gebäudes möglich. Die Möglichkeit, die Gastrozone der Bäckerei auf den Platz hinaus mit Tischen zu erweitern schafft einen Mehrwert für Bäcker und die Gemeinde.
Die holzverschalte Fassade des Gebäudes ist als Referenz zur Nachhaltigkeit des Marktkonzeptes gedacht – ein nach außen sichtbares Zeichen gesetzt für regionale, hochwertige Produkte und gelebte Inklusion. Die Konzeption der Fassade lässt durch unterschiedliche Linienführung zum Teil Räume zwischen dem temperierten Gebäudevolumen und der Fassade entstehen - z.B. Eingangsbereich, Buswartebereich und Gehsteig. Dieser wird entlang der nördlichen Straße durch die Gebäudehülle hindurchgeführt.
AMTSGEBÄUDE
Über einen neuen Windfang betritt man das Amtsgebäude. Der Stiegenaufgang in das Hochparterre bleibt bestehen. Ein Aufzug, als Durchlader ausgebildet, erschließt alle Ebenen. Das Amtsgebäude ist geschossweise strukturiert und thematisch geordnet:
Erdgeschoss - Servicestelle für Bürgerinnen und Bürger
Mit geringen Umbaumaßnahmen werden alle Funktionen für die Bürgerinnen und Bürger im Erdgeschoss angeordnet. Die interne Kommunikation zwischen den Gemeindebediensteten untereinander ist so ebenfalls einfach möglich.
Obergeschoss - Ebene für Politik
Die Wohnungen im Obergeschoss werden aufgelassen. Durch den Abbruch der Zwischenwände entsteht der große Sitzungssaal. Die Möglichkeit zur Vergrößerung um den daneben geplanten Besprechungsraum (Fraktionsraum) wird vorgeschlagen.
Untergeschoss - Flexible Nutzung
Die im Untergeschoss verbleibende Raumreserve könnte als „Gemeindestub´n“ flexible Nutzungen ermöglichen – z.B. Vereinsraum, Standesamt verbleibt im Untergeschoss, Bäcker verbleibt im Untergeschoss, Ausstellungen, Veranstaltungen.
KONSTRUKTION UND MATERIALITÄT
Der Markt ist als Holz-Riegelbau mit wirtschaftlichem Raster konzipiert. Die Fassade bildet eine umlaufende, stehende, Lärchenholzverschalung mit Vorverwitterungsanstrich, die bei Eingängen und Durchgängen Öffnungen frei lässt. Das Dach ist als Flachdach mit extensiver Begrünung gedacht.

















