
HAID
geladener Wettbewerb 2017 mit Arch. Helmuth Schweiger // Realisierung: 2018 – 2019
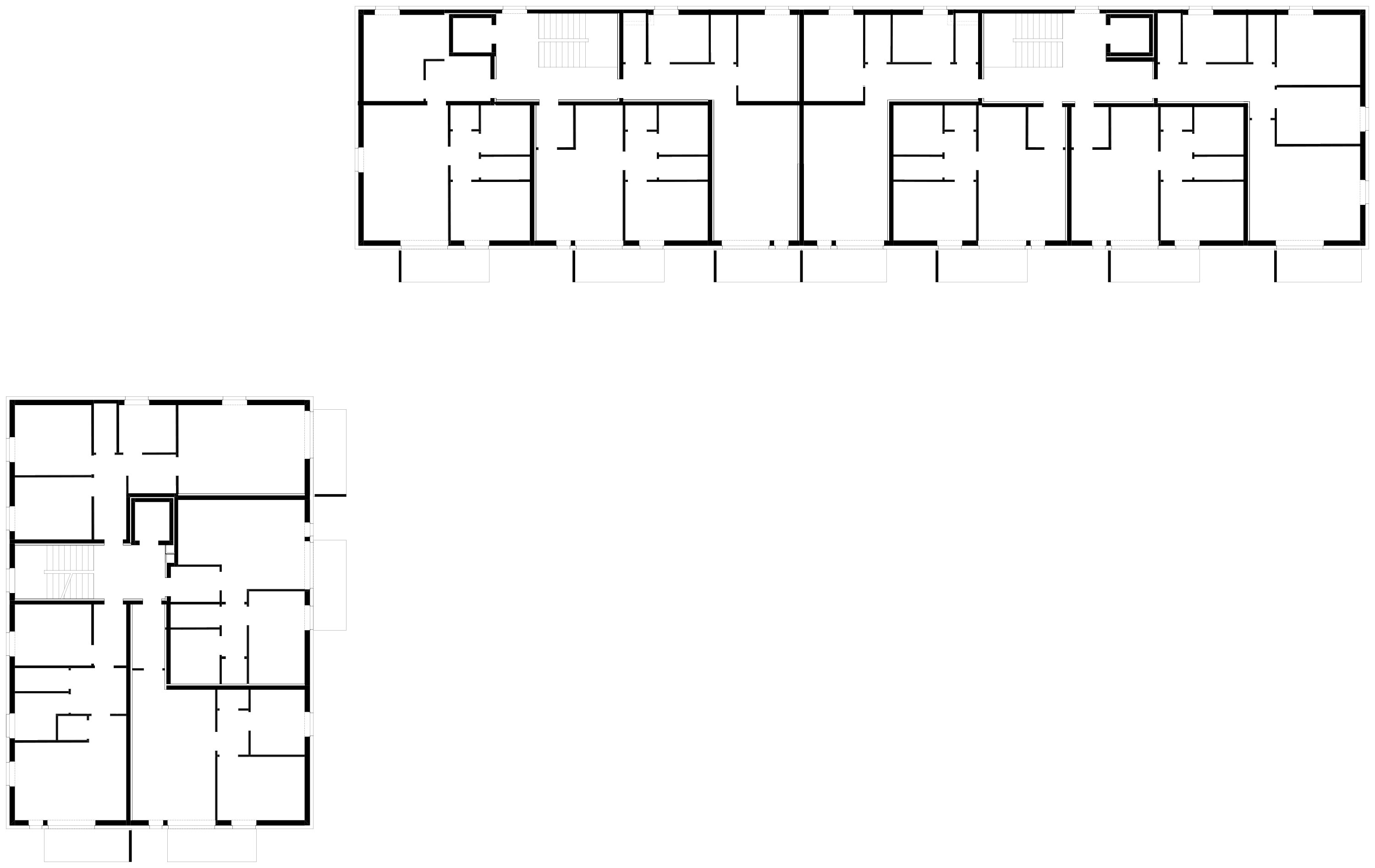
BAUKÖRPER, EIN PARK, EIN PAVILLON
Zwei orthogonal zueinander gesetzte Baukörper sind im Norden und Osten des Grundstücks verortet und spannen einen dazwischenliegenden Außenraum auf der nach Südwesten orientiert ist. Der Außenraum wird als Park mit großkronigen Bäumen gestaltet und der Großteil der Wohnungen in seine Richtung profitiert. Für die fußläufige Erschließung der Häuser vom Stadtzentrum kommend, durchquert man den Park, dem als halböffentlichem Bereich die Rolle zukommt, als Aktivator nachbarschaftliche Kommunikation anzuregen. Dieser Gedanke wird auch mitgetragen vom PAVILLON, einer Flugdachstruktur, die Fahrräder, Müll, aber auch Flächen für gemeinschaftliche Möglichkeiten beinhaltet.
HÖHENSTAFFELUNG
Die Staffelung der Höhen nimmt Bezug auf die Umgebung. Zur Autobahnkirche stuft sich die Bebauung ab, der turmartige Charakter des Hauses 2 kann als Zitat auf die angrenzende östliche Bebauung gelesen werden.
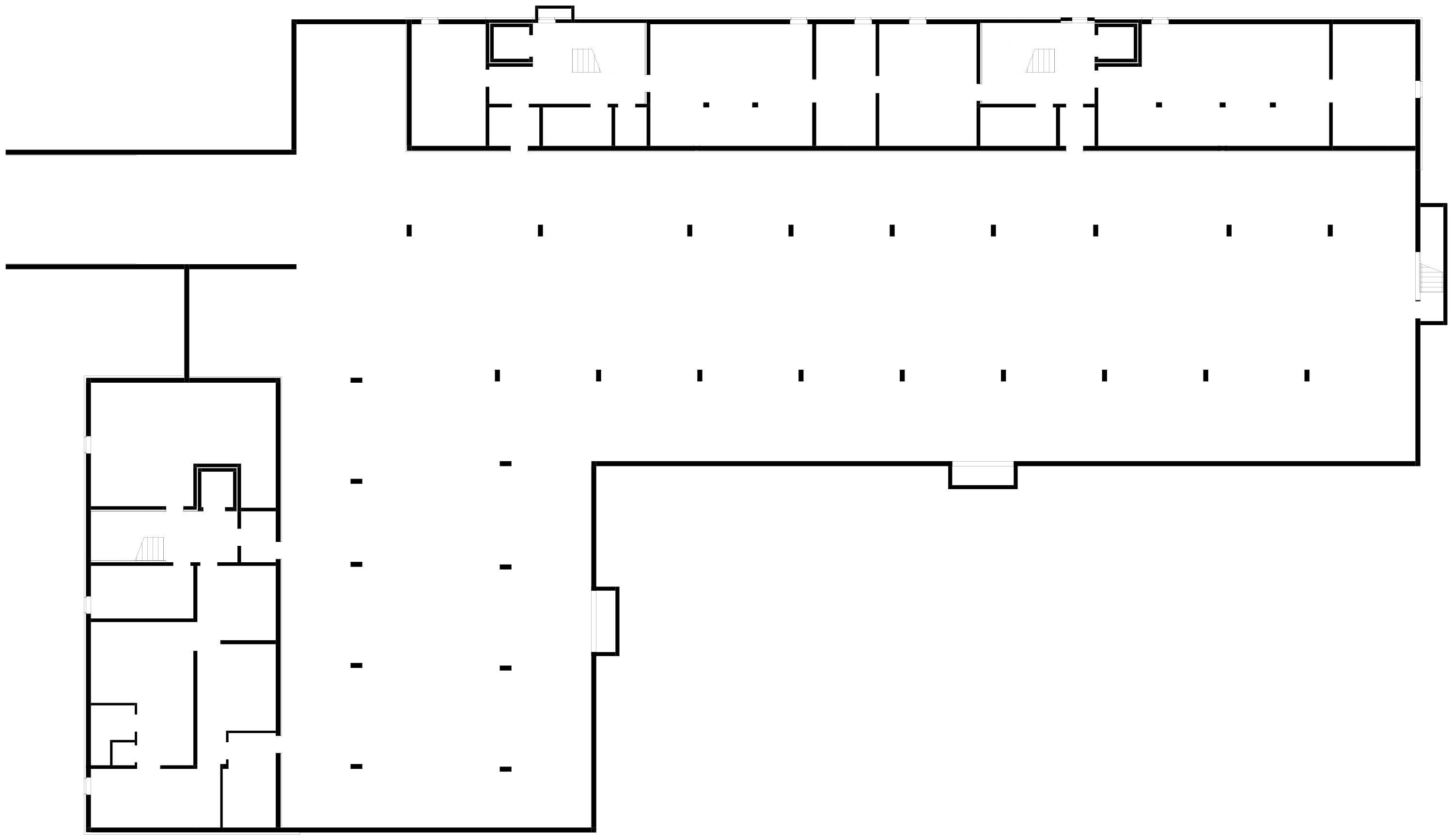
GRÜNRAUMKONZEPT
Generell ist es die Idee, die pixelartige Strukturierung der bestehenden und neu geplanten Wohngebäude auch für den wohnungsnahen Freiraum zu übernehmen.
Als Vorbild dient das kleine Waldstück im Norden, das ebenfalls in einem vom Katasterplan vorgegebenen „Pixel“ eingebettet ist. Es soll in Form von Baumhainen in eine parkähnliche Situation mit Wiesen oder Rasenflächen auf den Grünraum übertragen werden. Dieses initiative Grünraumsystem kann auch für zukünftige Bebauungen benachbarter Grundstücke weiter entwickelt werden. Unter den freien, grünen Dächern der Baumhaine sind Kinderspielplätze, sowie unterschiedliche Sitzgelegenheiten zur Erholung oder zum Treffen, eingebettet. Sie sollen allen Nutzergruppen von Jung bis Alt die Möglichkeit geben, ihre Freizeit zu gestalten und sich zu erholen.























